環鏈斗式提升機|環鏈斗式提升機參數|鏈式斗提機結構圖
一、TH型斗提機概述
TH型斗提機具有輸送量大,提升高度高,運行平穩可靠,壽命長等顯著特點。其主要性能及參數 符合JB3926-85《垂直斗式提升機》標準。牽引用圓環鏈符合GB/T12718-91《礦用高強度圓環鏈》。
TH型斗提機可用來輸送溫度較高的物料,所輸送的物料溫度不超過250℃。用來輸送密度ρ不大于1.5t/m3的粉狀、粒狀及小塊狀的無磨琢性、半磨琢性的物料,如煤、水泥、石塊、砂、黏土、礦石等。卸料方式為混合式或重力式。
TH型斗提機被廣泛地使用于各工業部門,如建材、電力、化工、冶金、煤炭、輕工、糧食等行業。
二、TH型斗提機性能特點
TH型環鏈斗提機具有如下的特點:
★輸送量大,與同型號HL型相比,輸送量增大近一倍;
★更換方便,節約成本。因采用了組裝式鏈輪,輪體與輪緣用高強度螺栓聯接在一起。當鏈輪磨損到一定程度時,可擰下螺栓,拆換輪緣,更換方便。從而降低了維修費用。
★噪聲低,符合當前環保要求。傳動裝置采用了ZLY型減速機,該減速機是按ZBJ19004-88標準生產的新型硬齒面減速機,齒輪經滲碳,淬火,磨齒等工藝精制,具有體積小,重量輕,承載能力高,壽命長,效率高噪聲低等優點。
★傳動裝置安裝了逆止器,有效防止“倒料”的發生。
★牽引件為低合金鋼制造的高強度圓環鏈,經合理熱處理后,具有抗拉強度高,耐磨性好,使用壽命長的優點。
TH型斗提機有兩種料斗:
Zh型(中深斗)一般適用于輸送濕的,易結塊的,較難拋出的物料,如濕砂、型砂、化肥、堿粉等。
Sh型(深斗)適用于輸送干燥的,松散易于拋出的物料,如水泥、熟料、碎石、煤塊等,其輸送量也比Zh型的大。
三、TH型斗提機技術參數
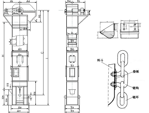
四、TH型斗提機外形圖。見附圖。
五、TH型斗提機的安裝要求
1.斗提機下部區段的支撐面,必須保證坐落在基礎的水平面上。
2.斗提機的上部驅動軸和下部張緊軸應在同一垂直平面內,并且兩軸心線均應與水平面平行。
3.中間機殼的法蘭連接處,不得有顯著的錯位。法蘭間可墊入石棉墊或防水粗帆布,以保證密封性。
4.斗提機的下部區段、中間機殼和上部區段的中心線應在同一垂直線上,其垂直度偏差在1m長度上不允許超過1mm,總高的累積偏差不允許超過8mm。
5.料斗在牽引件上的位置應正確,并緊固可靠。在運行中,不應有偏斜和碰撞機殼的現象發生。
6.螺旋拉緊裝置調整好后,應使牽引構件具有均勻的、正常運行所必需的張緊力。為了使在運行中有足夠的拉緊行程,余下的拉緊行程應不少于全行程的50%。
7.減速機高速軸的軸線與電動機的軸線,應相互平行;低速軸的軸線與斗提機驅動軸的軸線,應在同一水平線上,其最大平行偏移量不得超過0.2mm,最大軸線交角不得超過40‵。
8.斗提機應安裝起吊設備,起重量不小于2t。起重機的軌底與驅動中心線的距離一般為2~2.2m。
9.斗提機的中部應有防止偏移的中間支撐裝置。支撐點的間距不大于8m。最上面的支撐點應盡量靠近頭部。
河南奧創斗式提升機結構圖紙繪畫、價格計算、廠家真機圖片展示,及到廠實地考察接待,歡迎實地考察!
訂購網址請登錄河南奧創機械有限公司官方網站:m.sobang.com.cn 24小時服務熱線:13353676726


